
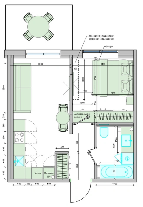
«Для одной и той же планировки можно создать разные планировочные решения. Эти решения не всегда очевидны, требуют опыта и знания современных технологий. Мы поможем учесть ваши привычки, состав семьи, приоритеты на этапе выбора квартиры. Если правильно использовать пространство, эргономичная „двушка“ может оказаться практичнее малоудобной „трёшки“, — говорит дизайнер интерьера застройщика „Терминал-Ресурс“ Лайне Белкова.
В квартирографии «Образцовых кварталов» представлено большое разнообразие планировок от компактных студий до просторных «трёшек». Квартиры передаются с подготовкой под чистовую отделку: в них выполнена ровная стяжка пола, сделана электроразводка с розетками и выключателями, установлены качественные стеклопакеты и металлическая противопожарная дверь. Малоэтажка оснащена современными лифтами. Система отопления реализована по технологии водяной тёплый пол с крышными газовыми котельными. Это позволяет отказаться от радиаторов и труб, что освобождает полезную площадь в квартире и открывает больше возможностей для интересных дизайн-проектов.

*Сроки акции: 15.12.2025 — 30.12.2025. Организатор: ООО «СЗ „Терминал-Ресурс“. При покупке квартиры в „Образцовых кварталах“ покупатели могут получить эскиз планировочного решения бесплатно. Подробности на сайте и в отделе продаж застройщика и по телефону +7 (812) 719-19-19.
Готовые и строящиеся квартиры в Пушкинском районе от застройщика: г. Санкт-Петербург, ул. Кокколевская, д.1, отдел продаж ООО «СЗ „Терминал-Ресурс“ в БЦ „Перспектива“ (рядом с ЖК „Образцовые кварталы“), www.devcent.ru
ЖК «Образцовый квартал 14», ЖК «Образцовый квартал 15», ЖК «Образцовый квартал 16», ЖК «Образцовый квартал 17», ЖК «Образцовый квартал 6.4» — застройщик ООО «СЗ „Терминал-Ресурс“», проектные декларации на сайте наш. дом.рф












